Rif: PV3227
VIAREGGIO
LUCCA
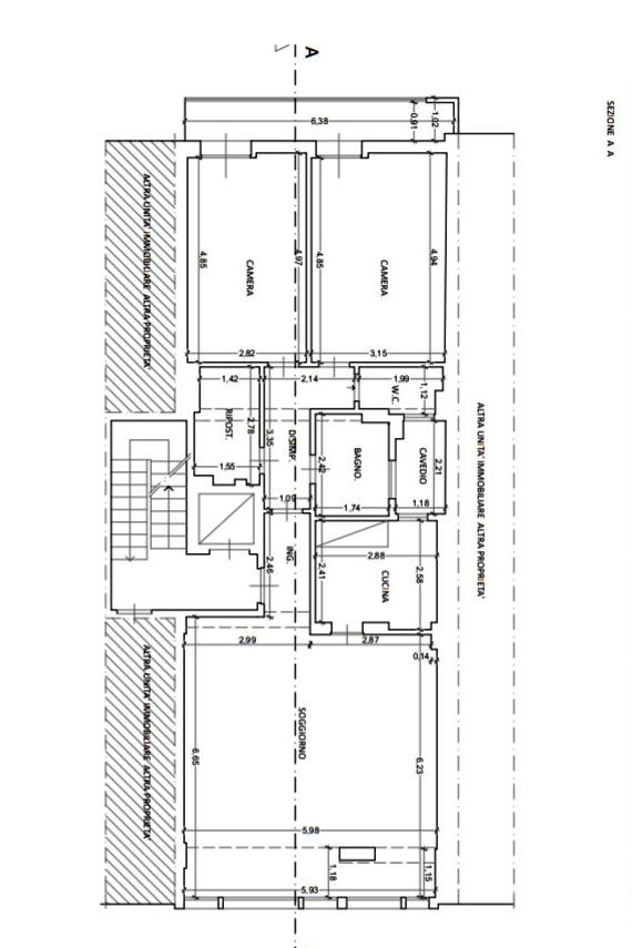
VIAREGGIO CENTRO, A SOLI 300 METRI DAL MARE, ZONA SUPER STRATEGICA, VICINO A TUTTI SERVIZI E MIGLIORI NEGOZI, A DUE PASSI ANCHE DALLA PINETA DI PONENTE, IN FABBRICATO CONDOMINIALE, LUMINOSISSIMO APPARTAMENTO, SITO AL 2°P. CON ASCENSORE. COSì COMPOSTO, INGRESSO CON DISIMPEGNO, AMPIA SALA , CUCINAABITABILE, ZONA NOTTE: DUE CAMERE MATRIMONIALI CON COMODO BALCONE,RIPOSTIGLIO E DOPPI SERVIZI. L`IMMOBILE è IM BUONE CONDIZIONI E DISPONIBILE SUBITO, GODE DI OTTIMA ESPOSIZIONE! INOLTRE DIVERSI P.BICI AL COPERTO. A SOLI Eu.385 MILA (TRATTABILI)
Consistenze
| Descrizione | Superficie | Sup. comm. |
|---|---|---|
| Principali | ||
| Immobile - 3° piano | 100 Mq | 100 Mqc |
| Totale | 100 Mqc | |








